Skip to content
  • 403.606.8593
  • Connect
    • Email
    • Facebook
    • Instagram
Connect
Kevin French Charles
  • Kevin French
  • My Office Charles
  • 403.606.8593
  • kevin@kevinfrench.ca

Let's Talk

Skip to content
  • Property Search
    • North West
    • North
    • North East
    • West
    • City Centre
    • East
    • South
    • South East
    • Specialist Areas
      • Auburn Bay
        • Houses
        • Semi Detached Houses
        • Townhomes
        • Condos
      • Cranston
        • Houses
        • Semi Detached Houses
        • Townhomes
        • Condos
      • Mahogany
        • Houses
        • Semi Detached Houses
        • Townhomes
        • Condos
  • Featured Listings
    • Office Listings
    • Kevin’s Listings
    • Past Sales
  • Marketing
  • Buyer/Seller
    • Buyer
      • Buyer’s Guide
      • Mortgage Calculator
      • Home Finder
    • Seller
      • Seller’s Guide
      • Home Evaluation
  • About
    • Kevin’s Team
    • Who Is Charles
    • Testimonials
Sold

317 Sovereign Common SW

Shaganappi – Calgary, AB

6
  • 317 Sovereign Common SW
  • $779,900
  • 3 bedrooms
  • 3 bathrooms
  • 1,681 sqft
1 of 6
Courtesy of Kevin French of Charles
  • Details

  • List Price $779,900
  • Style 2 Storey
  • Bedrooms 3
  • Bathrooms 3 (1 partial)
  • Floor Space 1,681 sqft
  • Condo Fees $319
  • Features Back Lane, Landscaped
  • Amenities No Animal Home, No Smoking Home, Open Floorplan, Vinyl Windows
  • Address 317 Sovereign Common SW, Calgary, AB, T3C 3Y3

About

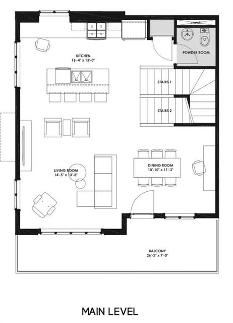
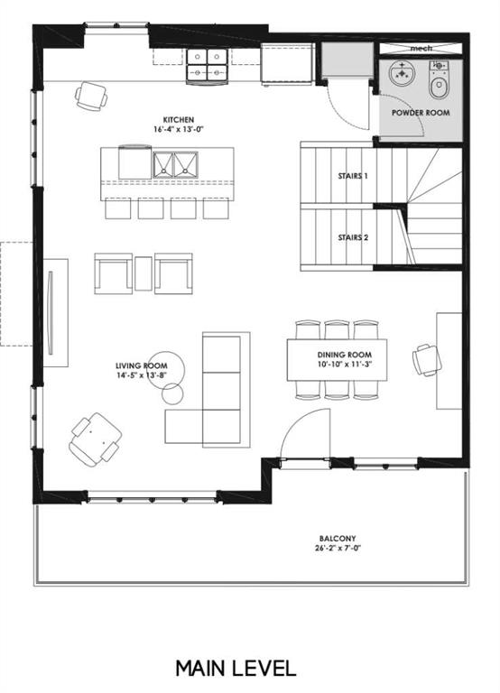
The Torrey 2 built by Brookfield Residential is a brand new townhome featuring 3 bedrooms, 2.5 bathrooms and nearly 1,700 square feet of living space with a private double attached garage. Located in Crown Park, Calgary’s newest large-scale inner-city development just minutes from downtown with breathtaking views, this home is perfect for young professionals or a small family. The main level features an open concept plan with a large kitchen that overlooks the main living area and dining space. The kitchen includes a large island for additional seating and designer finishes throughout. A balcony spans the width of the home, providing an incredible outdoor living space and a wall of windows allows for natural light to flood the space all day long. The upper level has a large primary suite with a 4 pc ensuite including dual sinks and a walk-in shower as well as a walk-in closet. Two more bedrooms and a full bathroom complete the upper level. The private double attached garage is perfect for keeping your vehicle and valuables safe all year long and provides an additional storage space. This brand new model is under construction and set for possession in Spring 2025! Builder new home warranty + Alberta New Home Warranty allow you to purchase with peace of mind in Calgary’s newest development just steps from downtown Calgary.

Contact

Kevin French
  • A featured listing of
    Kevin French
  • My Office Charles
  • Mobile 403.606.8593
  • Email kevin@kevinfrench.ca

Community

Mortgage calculator

Charles

205-4915 Elbow Drive SW
Calgary, AB, T2S 2L4

Contact
Phone: 403.606.8593
Office: 403.267.0000
Email: kevin@kevinfrench.ca

     
Charles — 205-4915 Elbow Drive SW Calgary, AB, T2S 2L4 — 403.267.0000
© 2026 Kevin French
Home / A2169478
Data is supplied by Pillar 9™ MLS® System. Pillar 9™ is the owner of the copyright in its MLS® System. Data is deemed reliable but is not guaranteed accurate by Pillar 9™. The trademarks MLS®, Multiple Listing Service® and the associated logos are owned by The Canadian Real Estate Association (CREA) and identify the quality of services provided by real estate professionals who are members of CREA. Used under license. Listing data last updated 2026-03-15T01:13:33Z.
Powered by Avenue
The growth engine for driven real estate professionals.